The mutations of non-linear developments of epochs, as well as known and hidden factors, will present a paradigmatic shift in the human race. The question of progress or regress of that step is answered in the project: Agenda 22. 

The “homo movens” of the 21.st century finds a new cocoon. A place where space is defined by millimeters and virtuality. The project is a response to a student assignment under the mentorship of Leo Modrčin.

agenda 22

Otkucaji sekundi do nadolazeće paradigmatske promjene predstavljaju nužan imperativ novog arhitektonskog diskursa. On svoje temelje traži u novom poimanju arhitekta ne kao više arhaičnog junaka gradograditelja, već kao odricatelja svojeg htjenja. Arhitekt budućnosti projektira za čovjeka budućnosti, pri čemu mu spektar stečenih znanja i tehnologija pomaže u futurološkom predviđanju mogućnosti razvoja. Ovim projektom dan je moguć uvid u novi prosjek. Novi društveni poredak, čovjeka 22.stoljeća. Takav je čovjek i dalje lancima vezan za arhitekonsko stvaralaštvo, te mu je ovime podaren moguć odgovor na pitanje stanovanja, odnosno preživljavanja kao najvažnijeg životnog elementa. Projekt je pars pro toto karaktera, te nije ograničen imaginarnim granicama ljudske intervencije. On se nalazi gdje za njega postoji potreba, gdje se budućnost napredka mjeri u brzini vlakova, ekscesu i hiperboličnosti. Iskonski strah od ironije, leži u njenoj istinitosti.

 

Mutacije nelinearnog razvoja epoha i djelovanja vidljivih kao i skrivenih faktora koje nasljeđuju našu eru, predstavljat će znakovit iskorak ljudske rase. Pitanje progresa ili regresa tog koraka, odgovoreno je projektom: Agenda 22. Dim iz cjevi okinutog pištolja pred truplom kritičkog osvrta ljudskosti i same civilizacije, predstavnik je začetka razvoja budućnosti. Socijalni ustroj kojemu svjedočimo u našem stoljeću, poput paradoksalnog domino efekta koji šireći svoju agendu, utišava kritički osvrt na njega samoga. Procesi djelovanja okoliša na pojedinca, gotovo jednako djele taj tron s utjecajem djelovanja čovjeka na njegov okoliš. Uzajamni splet okolnosti, uzročno-posljedičnih veza, koji rezultiraju razvojem društva. Ciklički zatvoren Sizifov krug bez mjesta za bijeg. Takav ustroj za svoje temelje uzima upravo propast kritičkog stava. Ustroj gdje su granice mogućeg dovedene do njihovih točaka pucanja, makar su te točke zaboravljene. Te se granice pomiču uz neobuhvatno eksponencijalan rast i progres tehnologije, koja neizbježno rezultira novim društvenim paradigmatskim promjenama. Promjene koje ruše barijere davno postavljenih istorija.

 

Ruševine: 1. Prostor, čije se granice preljevaju u potpuni virtualitet. Prostor reduciran na kvalitetu projicirane virtualne realnosti, prostor prodavan u mm2. Prostor kao predmet konzumacije, prostor kao komoditet. Prostor oduzet i nametnut u odnosu na hijerarhijsko stanje pojedinca. 2. Sedimentarnost, sada asocijacija prošlosti, iščupana s paunovog repa pompe visokoklasne reprezentativnosti. Novi čovjek budućnosti, prošavši tranziciju “homo movens” – “homo efluviens”- dolazi do njemu neznano nametnutog “homo habinomadis”. Njegov dom, postaje njegov auto. Njegov auto, postaje vlak. Nomadstvo jedinke, postaje njegova svakodnevnica i stvorena želja. 3. Tržište, regulirano površnim zakonima, tvorac je novih normi koje poput bačenog sidra povlači utapajuče žrtve nebrojivih elemenata društvenih tendencija. Prefix “Hiper” ovdje dobiva novi značaj i kvantitetu. Hiperkonzumerizam, hiperprodukcija, hiperdeflacija, hipereksploatacija, hipermarketing, hiperestetika, hiperpersonalizacija, hiperhumanizam. 4. Čovjek, novonastali produkt mašine za proizvodnju humanosti (ili njenog manjka) zrcalo je svih prijašnjih navedenih točaka. Njegova sjećanja postaju fizičke manifestacije kvantno računalne pohrane, ona sama pohranjena u uronjene arktičke komore zbog njihovog neizbježnog pregrijavanja.

Njegov vid postaje bistriji i augmentiraniji. Putem neuronskog spoja s mašinom, krug se mehatronike čovjeka i mašine spaja. On postaje jedno s virtualnom izgradnjom. Vidi svijet oko sebe kao konstantni priljev informacija. Najveća vještina pojedinca postaje razaznanje nebitnog i bitnog. Njegovo je tijelo prednatalno određeno dizajnerskim odabirom karakteristika, koje izmjena genoma omogućava. Čovjek postaje viši, snažniji, seksualno privlačniji, brži, fizički ljepši po standardima novog doba. Zbog izmjena tijela, i njegove veće potražnje za održavanjem takvog bioritma, pojedinac nadopunjuje svoje tijelo dnevnim ubrizgivačima kemijske industrije. Usađenim implantima otpušta dnevne doze sinaptičkih blokada dopamina. Njegova transformacija nadopunjuje vakum napravljen novim prostornim konceptom Relacije prikazane dijagramom opis su ključnih izmjena i korelacija između pojmova tijekom vremenskog lineariteta. Čovjek time, postepenom transhumanizacijom poprima, poput logičnog slijeda povijesnog razvoja mobitela, sve unapređenije funkcionalnosti mentalnih i fizičkih sposobnosti. Izvorni dizajn mobitela, ili po Corbusierovskim principima, automobil, te hram, danim vremenom doživljavaju evoluciju. Identično je načelo primjenjivo na ljudsko tijelo. Identično će načelo biti primjenjivano na onome što ostalo je od ljudskog tijela. Granice se prostora za rad i prostora za život preljevaju. Postaju zamršeni splet niti, čije su kritične škare odveć tupe da bi ih prerezale. Takav razvoj ne predstavlja pozitivan niti negativan uzlet, on samo jest. Kao što čovjek više ne razmatra svoju okolinu, on samo jest. On postaje utjelovljenje mediokriteta. On se privikava. Gubi kritičnost poput izgarajućeg plamena svjetlosti u mraku, čekajući Fenixov uzlet. Novi narativ svakodenvnice postaje borba protiv dosade.

Ovaj hipotetski eksperiment, predstavlja mogućnost. Sve nijanse specifičnosti razvoja budućnosti su educirani pokušaji, daleko od definitivnih činjenica. Njihovo obestinjenje stoji na okvirima prošlosti, kao jedinog izvora empriričkog saznanja. Futurolog budućnosti, arheolog je prošlosti. Njegovo je oružje činjenično bazirano, mistifikatorski izrečeno. “Even if it didn’t happen, it’s true.” -S.Žižek

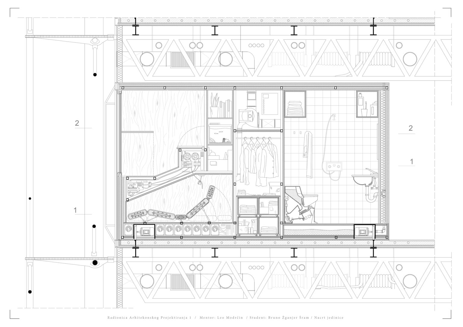
Takav rez u kroju, kroz koji čitamo budućnost, osvjetljava i još jednu pozornicu razvoja mobilnosti. Potaknut ekološkim željama negacije ispuštanja co2 emisija u atmosferu, avioni, kao i automobili, gube na svojem svakodnevnom značaju prijevoznog sredstva. Njih zamjenjuje vlak. Vlak kao novi potencijator ljudske mobilnosti (osobne kao i stambene), koji pojedincu daruje veću slobodu habitatnog kretanja svijetom. A priori, nužan je infrastrukutrni razvoj takvog narativa, stoga su željezničke pruge, i sva njena prateća infrastrukutra, uzdignuti visoko na popisu prioriteta država. Prateća infrastruktura ubraja u sebe, mostove, podvožnjake, tunele, signalizacijsko stupovlje, električnu mrežu, brusilice tračnica, te mnoge druge prostorne elemente, kao i neizbježan razvoj onoga što ovaj projekt predstavlja. “Emigrate or Degenerate.” -Philip K. Dick, Do Androids Dream of Electric Sheep? Čahura za organizam društva koji nomadski izmjenjuje svoju lokaciju, ne i svoj dom. Njegov dom postaje njegova jedinica. Jedinica opremljena osnovnim sustavima nužnim za život 22.st. Jedinica koja poput Teatra dell mondo, putuje krajolikom, do svojeg privremenog doma, u čahuri. Kako krvotok željeznice postaje sve zasićeniji, tako niču nova skladišta jedinica, odnosno čahure. Jedinice postaju proizvod ready made kataloga proizvođačkih giganta, dok čahure za njihov primitak, ready made arhitekturom. Jedinice opremljene su računalnim sustavima, spremnicima za informacije, kemijske proizvode, wc školjkama radiovalovne samoizgarajuče tehnologije, ormarima za pohranu, 4 manja stolca sa otvorima za stvari, 1 stol. Sva nepoželjna voda, odvodi se u spremnik, te se kasnije ispumpava u predviđenim rokovima nebodera. Sustav je upogonjen elektromotorima, koji pomiču jedinice, u ovisnosti korištenja prostora.

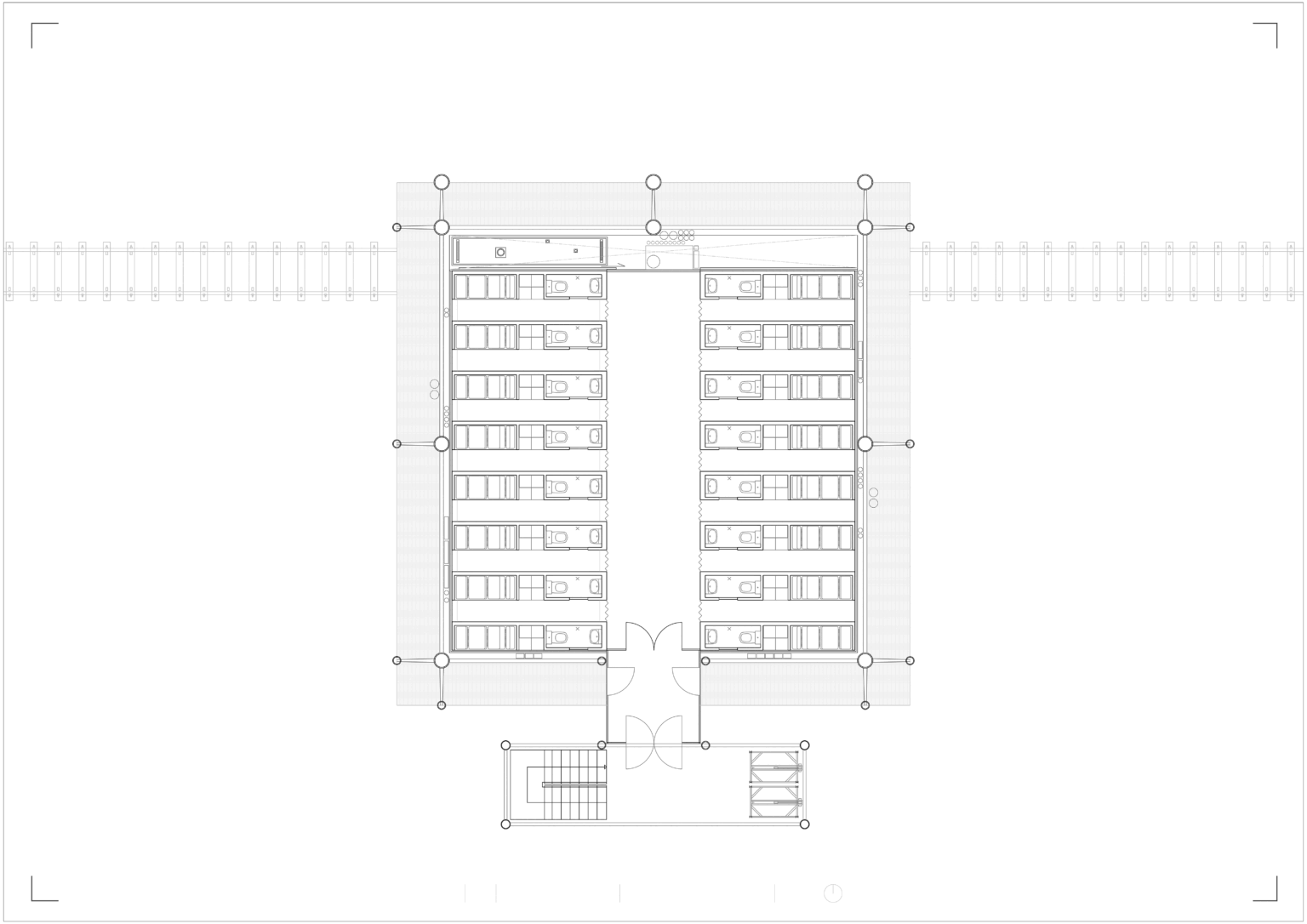
“The skyscraper looks as if it will be the final, definitive typology. It has swallowed everything else. It can exist anywhere: in a rice field, or downtown.it makes no difference anymore.” -R.Koolhas, Generic city Arhitekt 22. stoljeća, odriče se svojih htjenja formalističkog oblikovanja, odriče se svojeg potpisa. On postaje medijator međusobnog prostornog spleta ljudskih jedinica. Njegov alat u funkciji i programu, nalazi se u čitavoj znanoj povijesti arhitekture. Arhitekt iz nje crpi, izvlači, preoblikuje, kontemplira, kritizira, siše, propitkuje, plagira, te stvara kolaž istorije. Čovjek, opterećen ili oslobođen prostorne egzistencije većinu svog vremena, provodi to vrijeme u virtualnom svijetu doživljaja i podražaja. U tim trenutcima, on ne koristi prostor, te je podređen susjednim jedinicama. Njegov je minimalni svijet, definiran zakonom, taj sedamdestetcentimatarskog. Uvijek ima pravo na njega, dok se ne nalazi u virtualnom svijetu, unutar svoje jedinice. U trenutku uključenja virtualnosti, njegov je minimun, oduzet. Na drugoj strani sklopa jedinica, njegov (poznanik ili ne) ko-habitator, dobiva taj prostor, u slučaju njegovog nekorištenja. Na taj način, ljudski arhiv nebodernog sklopa, vječno živi, izmjenjuje svoje prostorne dimenzije, prilagođava se, dodaje i oduzima. Komoditet prostora time postaje imperativ, te je kao takav iskorišten do svojeg egzistencijalnog maksimuma. 

HRAM-KATEDRALA-PALAČA-TVORNICA-NEBODER